hejtmanský dvůr

2.NP
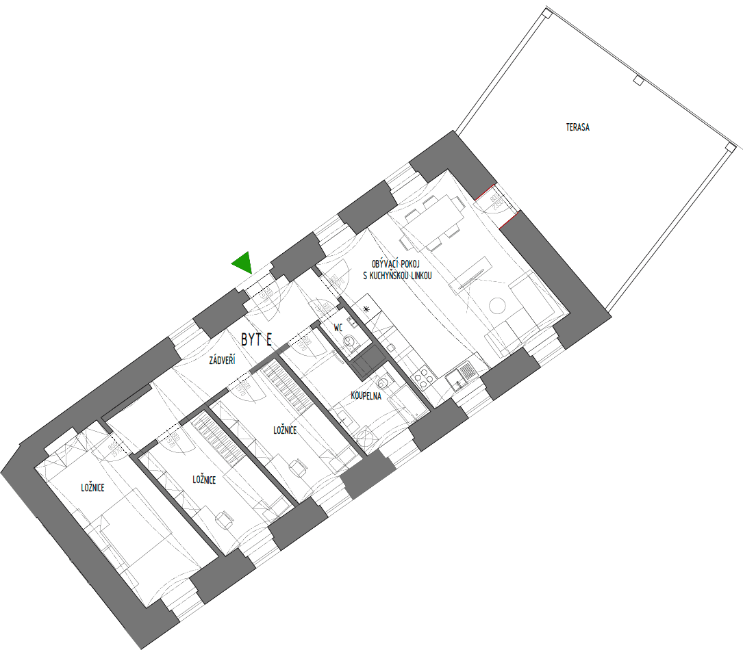
BYT E.201 4+KK
Cena bez DPH
10 000 000 Kč
Užitná plocha bytu
93 m²
Obytná plocha bytu
69,3 m²
Výjimečný byt 4+kk ve 2. nadzemním podlaží nabízí nadstandardní bydlení s velkorysou terasou, promyšlenou dispozicí a dostatkem prostoru pro rodinný život i relaxaci.
Byt disponuje užitnou plochou 93,0 m², přičemž obytná plocha činí 69,3 m². Hlavním obytným prostorem je prostorný obývací pokoj s kuchyňským koutem a jídelnou o ploše 32 m², který má přímý vstup na terasou o velikosti 38 m².
Ta nabízí ideální místo pro venkovní posezení, relaxaci nebo rodinné grilování a výrazně rozšiřuje obytný komfort bytu.
Dispozice zahrnuje tři samostatné ložnice (15,4 m², 11 m² a 11 m²), které poskytují dostatek soukromí pro každého člena domácnosti. K bytu dále náleží koupelna (8 m²), samostatné WC (1,5 m²) a zádveří (14 m²) s prostorem pro úložná řešení.
Byt je navržen s důrazem na funkčnost, dostatek denního světla a jasné oddělení denní a klidové části. Terasa představuje jednu z hlavních předností této jednotky a činí z bytu ideální volbu pro ty, kteří hledají komfort bytu v kombinaci s venkovním prostorem.




