hejtmanský dvůr

2.NP
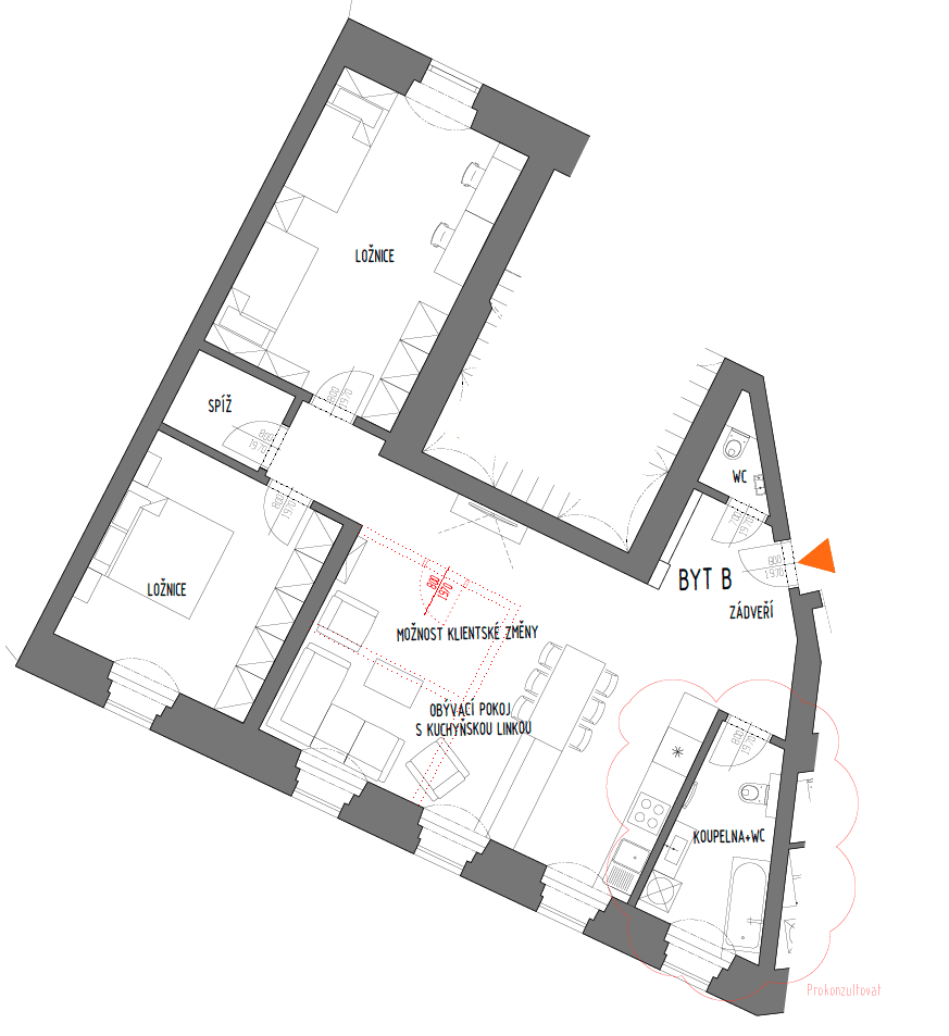
BYT B.201 3+KK
Cena bez DPH
10 000 000 Kč
Užitná plocha bytu
101,4 m²
Obytná plocha bytu
81,6 m²
Velkorysý byt 3+kk ve 2. nadzemním podlaží nabízí nadstandardní prostor, vzdušnou dispozici a komfortní bydlení vhodné pro rodinu i náročnější klienty.
Byt má užitnou plochu 101,4 m², z toho obytná plocha činí 81,6 m². Hlavní obytný prostor tvoří prostorný obývací pokoj s kuchyňským koutem a jídelnou o ploše 43 m², který je přirozeným centrem bytu a nabízí dostatek místa pro každodenní život i společná setkání.
Dispozice zahrnuje dvě samostatné ložnice (22 m² a 16 m²), které poskytují dostatek soukromí a klidu. Praktickým benefitem je samostatná spíž (3 m²) a prostorný vstup (8 m²). Komfort bydlení doplňuje samostatné WC (1,6 m²) a koupelna s WC (7,4 m²), což výrazně zvyšuje uživatelský komfort zejména pro rodinu.
Byt nabízí možnost klientských změn, díky nimž lze dispozici přizpůsobit individuálním potřebám budoucího majitele.




